产品中心

匠心 服务 创新 品质

向下滚动
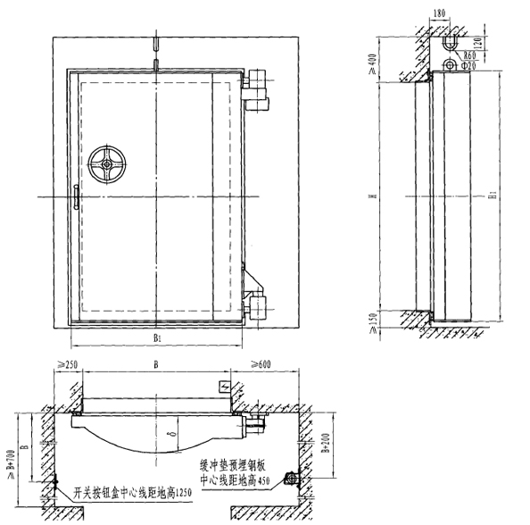
电控密闭门

 

电控密闭门的防电磁脉冲能力为III级。改类电控门轻变灵活,为一机两用电控门,即开关门与开关锁共用一个动力装置,具有就地控制、远程控制及智能控制(门禁系统)三种控制方式,并可根据工程需要加装安全监控和电磁锁装置。有下列要求之一时,宜采用手动、电动两用的防护设备:

(1)安装位置处于手动操作不便的场所;

(2)有自动控制、远程控制或智能控制要求;

(3)有启动时间要求。

 

型号 门孔宽B 门孔高H 门扇厚δ B1 H1 启闭时间(s)
DM1020 1000 2000 309 1200 2200 ≤15
DM1320 1300 2000 323 1500 1809 ≤15
DM1520 1500 2000 365 2200 1946 ≤15