匠心 服务 创新 品质

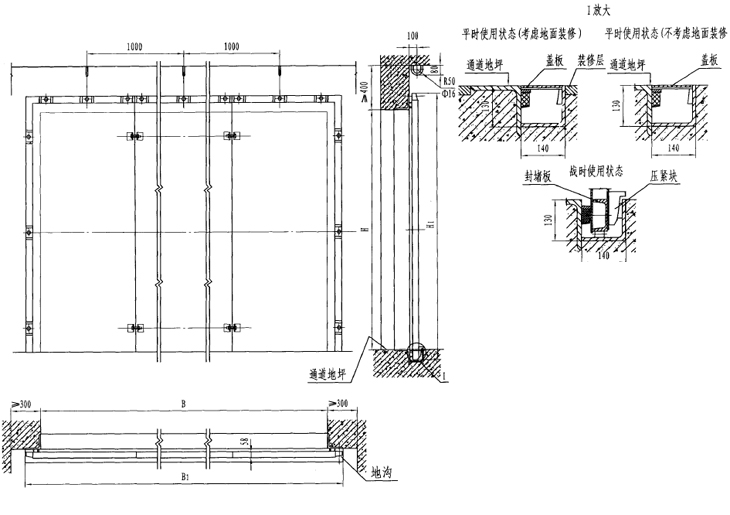
此封堵板可用于封堵平时使用、战时不用的孔口。其特点是平时可以不安装封堵板(但要加工好防在附近的指定位置),战时根据事先设定的转换时限将封堵板进行快速安装,以满足防护、密闭的要求。根据其设置位置的不同可分为防护单元通风口或连通口用双向受力防护密闭封堵板(编号中无“L”)和临空墙防护密闭封堵板两大类。

| 型号 | 门孔宽B | 门孔高H | B1 | H1 |
|---|---|---|---|---|
| FMDB3027(6) | 3000 | 2700 | 3320 | 2955 |
| FMDB3030(6) | 3000 | 3000 | 3320 | 3255 |
| FMDB4027(6) | 4000 | 2700 | 4320 | 2955 |
| FMDB4030(6) | 4000 | 3000 | 4320 | 3255 |
| FMDB4525(6) | 4500 | 2500 | 4820 | 2755 |
| FMDB5027(6) | 5000 | 2700 | 5320 | 2955 |
| FMDB5030(6) | 5000 | 3000 | 5320 | 3255 |
| FMDB6027(6) | 6000 | 2700 | 6320 | 2955 |
| FMDB6030(6) | 6000 | 3000 | 6320 | 3255 |
| FMDB7030(6) | 7000 | 3000 | 7320 | 3255 |
| FMDB1220(5) | 1200 | 2000 | 1520 | 2305 |
| FMDB1227(5) | 1200 | 2700 | 1520 | 3005 |
| FMDB1527(5) | 1500 | 2700 | 1820 | 3005 |
| FMDB3027(5) | 3000 | 2700 | 3320 | 2955 |
| FMDB3030(5) | 3000 | 3000 | 3320 | 3255 |
| FMDB4027(5) | 4000 | 2700 | 4320 | 2955 |
| FMDB4030(5) | 4000 | 3000 | 4320 | 3255 |
| FMDB5027(5) | 5000 | 2700 | 5320 | 2955 |
| FMDB5030(5) | 5000 | 3000 | 5320 | 3255 |
| FMDB6027(5) | 6000 | 2700 | 6320 | 2955 |
| FMDB6030(5) | 6000 | 3000 | 6320 | 3255 |