产品中心

匠心 服务 创新 品质

向下滚动
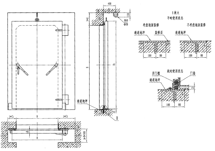
钢结构活门槛单扇防护密闭门

此类门的特点是平时不设门槛,地面平整,便于人员或车辆通行;战时快速设置门槛,以满足防护、密闭要求。

型号 门孔宽B 门孔高H 门扇厚δ B1 H1 C1 C2 D
GHFM0716(6) 700 1600 112 900 1675 300 500 400
GHFM0820(6) 800 2000 113 1000 2075 200 400 300
GHFM0920(6) 900 2000 113 1100 2075 200 400 300
GHFM1020(6) 1000 2000 113 1200 2075 200 400 300
GHFM1220(6) 1200 2000 132 1400 2075 200 400 300
GHFM1320(6) 1300 2000 133 1700 2075 200 400 300
GHFM1520(6) 1500 2000 134 1700 2075 200 400 300
GHFM1525(6) 1500 2500 138 1700 2575 200 400 300
GHFM1820(6) 1800 2000 172 2575 2075 200 400 300
GHFM1821(6) 1800 2100 172 2000 2175 200 400 300
GHFM2020(6) 2000 2000 176 2200 2075 200 400 300
GHFM2028(6) 2000 2800 156 2200 2875 300 500 300
GHFM0820(6) 800 2000 116 1000 2075 200 400 300
GHFM0920(6) 900 2000 116 1100 2075 200 400 300
GHFM1020(6) 1000 2000 116 1200 2075 200 400 300
GHFM1220(6) 1200 2000 136 1400 2075 200 400 300
GHFM1222(6) 1200 2200 146 1400 2275 300 500 400
GHFM1320(6) 1300 2000 136 1500 2075 200 400 300
GHFM1520(6) 1500 2000 138 1700 2075 200 400 300
GHFM1523(6) 1500 2300 146 1700 2375 300 500 400
GHFM1525(6) 1500 2500 146 1700 2575 300 500 400
GHFM2020(6) 2000 2000 196 2200 2075 200 400 300
GHFM2022(6) 2000 2200 180 2200 2275 300 600 400