匠心 服务 创新 品质

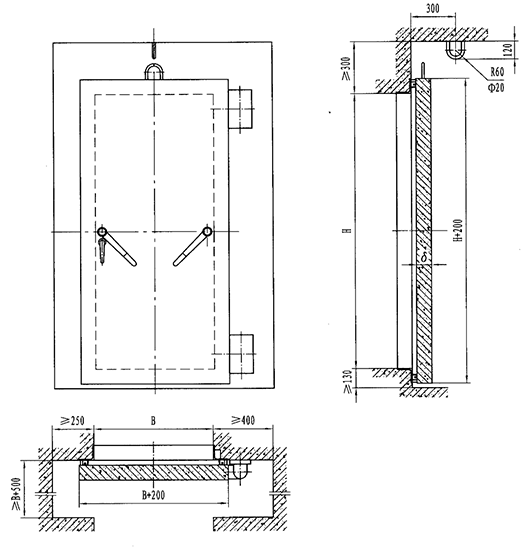
此类门的特点是门扇为钢筋混凝土结构,具有固定门槛,密闭措施采用嵌压梯形海绵胶条密封型式,密闭性能可靠,使用、维护方便,但门扇质量较重。

产品结构图
| 型号 | 门孔宽B | 门孔高H | 门扇厚δ |
|---|---|---|---|
| HFM0716(5) | 700 | 1600 | 100 |
| HFM0820(5) | 800 | 2000 | 100 |
| HFM0916(5) | 900 | 1600 | 100 |
| HFM0918(5) | 900 | 1800 | 100 |
| HFM0920(5) | 900 | 2000 | 126 |
| HFM1020(5) | 1000 | 2000 | 126 |
| HFM1118(5) | 1100 | 1800 | 126 |
| HFM1220(5) | 1200 | 2000 | 140 |
| HFM1320(5) | 1300 | 2000 | 140 |
| HFM1520(5) | 1500 | 2000 | 160 |
| HFM2020(5) | 2000 | 2000 | 180 |
| HFM0820(6) | 800 | 2000 | 100 |
| HFM0920(6) | 900 | 2000 | 100 |
| HFM1020(6) | 1000 | 2000 | 100 |
| HFM1220(6) | 1200 | 2000 | 126 |
| HFM1320(6) | 1300 | 2000 | 126 |
| HFM1520(6) | 1500 | 2000 | 126 |
| HFM1820(6) | 1800 | 2000 | 140 |
| HFM2020(6) | 2000 | 2000 | 140 |