产品中心

匠心 服务 创新 品质

向下滚动
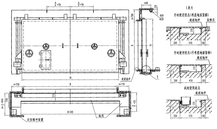
新型降落式双扇密闭门

此类门的特点是平时地面无门槛,便于人员和车辆通行;战时将门扇立转、降落及平移,以满足防护、密闭要求,其上带有方便人员临时出入的小门,平战转换快捷。新型降落门改进了其升降机构,操作更为方便。

型号 门孔宽B 门孔高H B1 H1
JSFM4026(5)A 4000 2600 4200 2800
JSFM4525(5)A 4500 2500 4700 2700
JSFM4526(5)A 4500 2600 4700 2800
JSFM5025(5)A 5000 2500 5200 2700
JSFM5026(5)A 5000 2600 5200 2800
JSFM5030(5)A 5000 3000 5200 3200
JSFM5526(5)A 5500 2600 5700 2800
JSFM7025(5)A 7000 2500 7200 2700
JSFM7026(5)A 7000 2600 7200 2800
JSFM7029(5)A 7000 2900 7200 3100