产品中心

匠心 服务 创新 品质

向下滚动
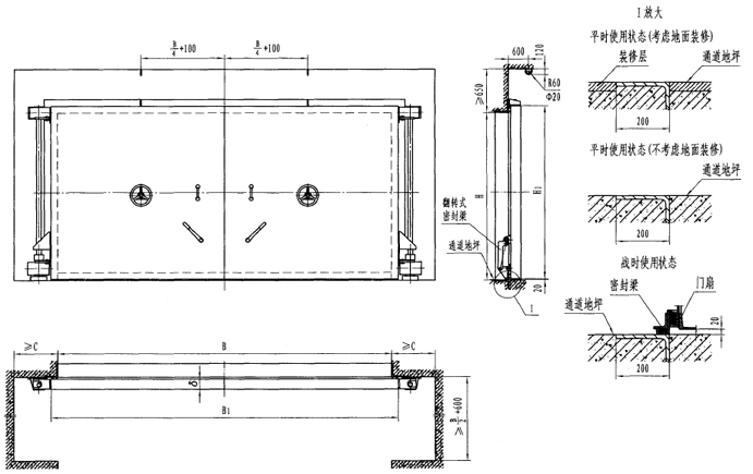
连通口双向受力双扇防护密闭门(外)

此类门设置在两个相邻防护单元连通口的防护密闭隔墙上。其特点是地面平整无门槛,可双向分别受力,双向密闭,平战转换快捷。

型号(一) 门孔宽B 门孔高H 门扇厚δ B1 H1 C
GSFMG3025(6) 3000 2500 150 3200 2580 650
GSFMG3538(6) 3500 3800 150 3700 3880 650
GSFMG4025(6) 4000 2500 150 4200 2580 650
GSFMG4625(6) 4600 2500 150 4800 2580 650
GSFMG5021(6) 5000 2100 150 5200 2180 650
GSFMG5022(6) 5000 2200 150 5200 2280 650
GSFMG5025(6) 5000 2500 150 5200 2580 650
GSFMG5030(6) 5000 3000 150 5200 3080 650
GSFMG5525(6) 5500 2500 150 5700 2580 650
GSFMG6022(6) 6000 2200 150 6200 2280 650
GSFMG6025(6) 6000 2500 150 6200 2580 650
GSFMG6028(6) 6000 2800 152 6300 2880 700
GSFMG6032(6) 6000 3200 152 6200 3280 650
GSFMG7025(6) 7000 2500 152 7300 2580 700