匠心 服务 创新 品质

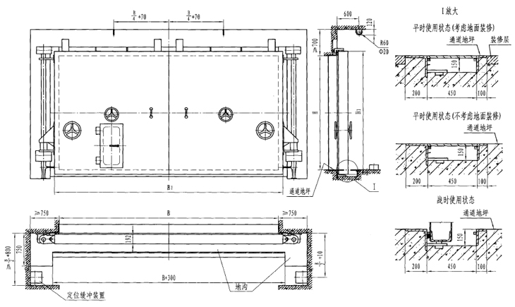
此类门的特点是平时地面无门槛,便于人员和车辆通行;战时将门扇立转、降落及平移,以满足防护、密闭要求,其上带有方便人员临时出入的小门,平战转换快捷。新型降落门改进了其升降机构,操作更为方便。

| 型号 | 门孔宽B | 门孔高H | B1 | H1 |
|---|---|---|---|---|
| JSFM4026(5)A | 4000 | 2600 | 4200 | 2800 |
| JSFM4525(5)A | 4500 | 2500 | 4700 | 2700 |
| JSFM4526(5)A | 4500 | 2600 | 4700 | 2800 |
| JSFM5025(5)A | 5000 | 2500 | 5200 | 2700 |
| JSFM5026(5)A | 5000 | 2600 | 5200 | 2800 |
| JSFM5030(5)A | 5000 | 3000 | 5200 | 3200 |
| JSFM5526(5)A | 5500 | 2600 | 5700 | 2800 |
| JSFM7025(5)A | 7000 | 2500 | 7200 | 2700 |
| JSFM7026(5)A | 7000 | 2600 | 7200 | 2800 |
| JSFM7029(5)A | 7000 | 2900 | 7200 | 3100 |