匠心 服务 创新 品质

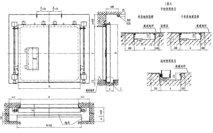
此类门的特点是平时地面无门槛,便于人员和车辆通行;战时将门扇立转、降落及平移,以满足防护、密闭要求,其上带有方便人员临时出入的小门,平战转换快捷。新型降落门改进了其升降机构,操作更为方便。

| 型号 | 门孔宽B | 门孔高H | 门扇厚δ | B1 | H1 | D |
|---|---|---|---|---|---|---|
| JSM2525 | 2500 | 2500 | 200 | 2700 | 2700 | 360 |
| JSM3025 | 3000 | 2500 | 196 | 3200 | 2700 | 360 |
| JSM4025 | 4000 | 2500 | 190 | 4200 | 2700 | 400 |
| JSM4026 | 4000 | 2600 | 192 | 4200 | 2800 | 400 |
| JSM4525 | 4500 | 2500 | 192 | 4700 | 2700 | 400 |
| JSM4526 | 4500 | 2600 | 192 | 4700 | 2800 | 400 |
| JSM5025 | 5000 | 2500 | 192 | 5200 | 2700 | 450 |
| JSM5026 | 5000 | 2600 | 196 | 5200 | 2800 | 450 |
| JSM5027 | 5000 | 2700 | 196 | 5200 | 2900 | 450 |
| JSM6025 | 6000 | 2500 | 196 | 6200 | 2700 | 450 |
| JSM6026 | 6000 | 2600 | 196 | 6200 | 2800 | 450 |
| JSM6027 | 6000 | 2700 | 196 | 6200 | 2900 | 450 |
| JSM6030 | 6000 | 3000 | 196 | 6200 | 3200 | 450 |
| JSM7025 | 7000 | 2500 | 196 | 7200 | 2700 | 500 |
| JSM7026 | 7000 | 2600 | 196 | 7200 | 2800 | 400 |