匠心 服务 创新 品质

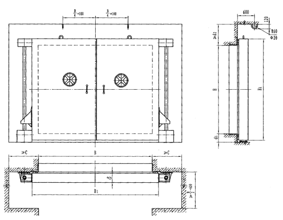
此类门的特点是具有固定门槛,门扇为梁板结构。

| 型号 | 门孔宽B | 门孔高H | 门扇厚δ | B1 | H1 | C | D1 | D2 |
|---|---|---|---|---|---|---|---|---|
| GSFM2021(5) | 2000 | 2100 | 176 | 2240 | 2340 | 500 | 150 | 500 |
| GSFM2521(5) | 2500 | 2100 | 176 | 2740 | 2340 | 500 | 150 | 500 |
| GSFM2525(5) | 2500 | 2500 | 176 | 2740 | 2740 | 500 | 150 | 500 |
| GSFM2721(5) | 2700 | 2100 | 176 | 2940 | 2340 | 500 | 150 | 500 |
| GSFM3022(5) | 3000 | 2200 | 176 | 3240 | 2440 | 700 | 150 | 500 |
| GSFM3025(5) | 3000 | 2500 | 176 | 3240 | 2740 | 700 | 200 | 500 |
| GSFM3027(5) | 3000 | 2700 | 220 | 3240 | 2940 | 700 | 150 | 500 |
| GSFM3030(5) | 3000 | 3000 | 196 | 3240 | 3240 | 700 | 200 | 500 |
| GSFM3035(5) | 3000 | 3500 | 240 | 3240 | 3740 | 700 | 150 | 500 |
| GSFM3228(5) | 3200 | 2800 | 220 | 3440 | 3040 | 700 | 150 | 700 |
| GSFM3336(5) | 3300 | 3600 | 216 | 3540 | 3840 | 700 | 150 | 500 |
| GSFM3427(5) | 3400 | 2700 | 176 | 3640 | 2940 | 700 | 150 | 500 |
| GSFM3434(5) | 3400 | 3400 | 2220 | 3640 | 3640 | 700 | 150 | 500 |
| GSFM3535(5) | 3500 | 3500 | 240 | 3740 | 3740 | 700 | 150 | 500 |
| GSFM3620(5) | 3600 | 2000 | 156 | 3840 | 2240 | 700 | 150 | 500 |
| GSFM3625(5) | 3600 | 2500 | 176 | 3840 | 2740 | 700 | 150 | 500 |
| GSFM3721(5) | 3700 | 2100 | 220 | 3940 | 2340 | 700 | 150 | 500 |
| GSFM3724(5) | 3700 | 2400 | 220 | 3940 | 2640 | 700 | 150 | 500 |
| GSFM3728(5) | 3700 | 2800 | 220 | 4000 | 3100 | 700 | 150 | 500 |
| GSFM3730(5) | 3700 | 3000 | 240 | 3940 | 3240 | 700 | 150 | 500 |
| GSFM3732(5) | 3700 | 3200 | 240 | 4000 | 3500 | 750 | 200 | 600 |
| GSFM4022(5) | 3700 | 3500 | 240 | 4000 | 3800 | 750 | 200 | 600 |
| GSFM4025(5) | 4000 | 2500 | 176 | 4240 | 2740 | 700 | 200 | 500 |
| GSFM4030(5) | 4000 | 3000 | 240 | 4300 | 3300 | 750 | 200 | 600 |
| GSFM4032(5) | 4000 | 3500 | 240 | 4300 | 3500 | 700 | 200 | 500 |
| GSFM4035(5) | 4000 | 3500 | 240 | 4300 | 3800 | 750 | 200 | 600 |
| GSFM4532(5) | 4500 | 3200 | 240 | 4800 | 3500 | 750 | 200 | 600 |
| GSFM4535(5) | 4500 | 3500 | 240 | 4800 | 3800 | 750 | 200 | 600 |
| GSFM5025(5) | 5000 | 3000 | 220 | 5240 | 2740 | 700 | 200 | 500 |
| GSFM5030(5) | 5000 | 3000 | 220 | 5240 | 3240 | 700 | 200 | 500 |
| GSFM5530(5) | 5500 | 3000 | 220 | 5740 | 3240 | 700 | 200 | 500 |
| GSFM6022(5) | 6000 | 2200 | 180 | 6300 | 2500 | 700 | 200 | 500 |
| GSFM6025(5) | 6000 | 2500 | 220 | 6240 | 3240 | 700 | 200 | 500 |
| GSFM6030(5) | 6000 | 3000 | 240 | 6240 | 3240 | 700 | 200 | 500 |
| GSFM6045(5) | 6000 | 4500 | 272 | 6300 | 4800 | 800 | 200 | 600 |
| GSFM7025(5) | 7000 | 2500 | 220 | 7240 | 2740 | 700 | 200 | 500 |