产品中心

匠心 服务 创新 品质

向下滚动
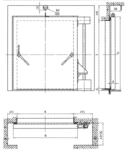
钢结构单扇密闭门

此类门的特点是具有固定门槛,门扇为梁板结构。

型号 门孔宽B 门孔高H 门扇厚δ B1 H1 C1 C2 D1 D2
GM0609 600 900 80 780 1000 200 300 100 300
GM0716 700 1600 80 800 1700 200 300 100 300
GM0718 700 1800 80 800 1900 200 300 100 300
GM0818 800 1800 80 900 1900 200 300 100 300
GM0820 800 2000 80 900 2100 200 300 100 300
GM0821 800 2400 80 900 2200 200 300 100 300
GM0824 800 2400 80 1000 2500 200 300 100 300
GM0916 900 1600 80 1000 1700 200 300 100 300
GM0918 900 1800 80 1000 1900 200 300 100 300
GM0920 900 2000 80 1000 2100 200 300 100 300
GM0921 900 2100 80 1000 2200 200 300 100 300
GM1020 1000 2100 80 1100 2100 200 300 100 300
GM1021 1000 2100 80 1100 2200 200 300 100 300
GM1118 1100 1800 80 1200 1900 200 300 100 300
GM1220 1200 2000 80 1300 2100 200 100 300 300
GM1318 1300 1800 112 1500 1923 250 400 50 400
GM1320 1300 2000 112 1500 2123 250 400 50 400
GM1321 1300 2100 112 1500 2223 250 400 50 400
GM1518 1500 1800 112 1700 1923 250 400 50 400
GM1520 1500 2000 112 1700 2096 250 50 1046  
GM1521 1500 2100 112 1700 2223 250 400 50 400
GM1621 1600 2100 112 1800 2223 250 450 50 400
GM1720 1700 2100 112 1900 2123 250 450 50 400
GM1721 1700 2100 112 1924 2146 250 450 50 300
GM1726 1700 2600 138 1810 2710 250 450 100 400
GM1824 1800 2400 112 2040 2446 250 450 30 300
GM2020 2000 2000 112 2200 2096 250 500 50 400
GM2025 2000 2500 112 2240 2546 250 450 30 300