匠心 服务 创新 品质

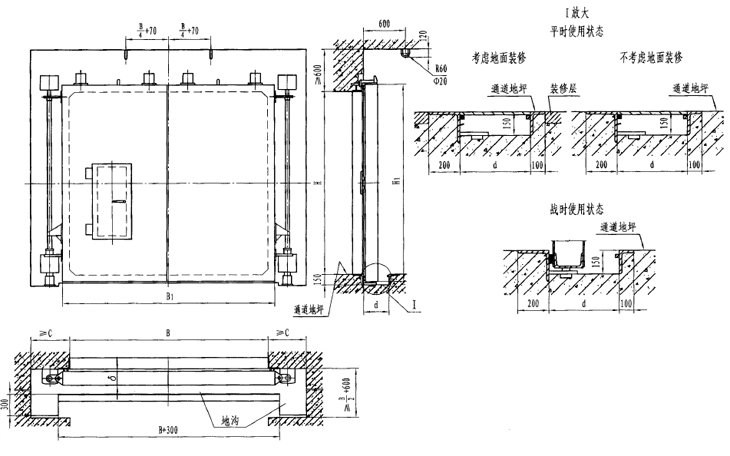
此类门的特点是平时地面无门槛,便于人员和车辆通行;战时将门扇立转、降落及平移,以满足防护、密闭要求,其上带有方便人员临时出入的小门,平战转换快捷。新型降落门改进了其升降机构,操作更为方便。

| 型号 | 门孔宽B | 门孔高H | 门扇厚δ | B1 | H1 | D |
|---|---|---|---|---|---|---|
| JSFM2525(5) | 2500 | 2500 | 200 | 2700 | 2700 | 360 |
| JSFM3025(5) | 3000 | 2500 | 200 | 3200 | 2700 | 360 |
| JSFM3026(5) | 3000 | 2600 | 200 | 3200 | 2800 | 360 |
| JSFM4025(5) | 4000 | 2500 | 240 | 4200 | 2700 | 400 |
| JSFM4026(5) | 4000 | 2600 | 242 | 4200 | 2800 | 400 |
| JSFM4525(5) | 4500 | 2500 | 240 | 4700 | 2700 | 400 |
| JSFM4526(5) | 4500 | 2600 | 242 | 4700 | 2800 | 450 |
| JSFM5025(5) | 5000 | 2500 | 240 | 5200 | 2700 | 450 |
| JSFM5026(5) | 5000 | 2600 | 240 | 5200 | 2800 | 450 |
| JSFM5027(5) | 5000 | 2700 | 242 | 5200 | 2900 | 400 |
| JSFM6025(5) | 6000 | 2500 | 242 | 6200 | 2700 | 450 |
| JSFM6026(5) | 6000 | 2600 | 242 | 6200 | 2800 | 450 |
| JSFM6027(5) | 6000 | 2700 | 242 | 6200 | 2900 | 450 |
| JSFM6030(5) | 6000 | 3000 | 240 | 6200 | 3200 | 500 |
| JSFM7025(5) | 7000 | 2500 | 240 | 7200 | 2700 | 500 |
| JSFM7026(5) | 7000 | 2600 | 242 | 7200 | 2800 | 700 |